Edificio en Ciutat Vella, con 680 m² construidos, 598 m² útiles, buen estado, exterior, 2 terraza(s), cocina independiente, orientación norte, más de 30 años, 3 plantas del edificio, balcón
Se presenta a mercado palacete urbano completo situado en el distrito de Ciutat Vella, en el corazón histórico de Barcelona, a escasos minutos del Gran Teatre del Liceu y del eje cultural y comercial de La Rambla.
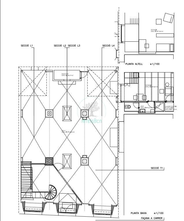
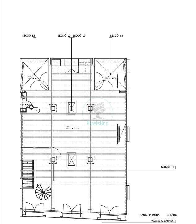
Edificio señorial en Ciutat Vella con gran valor patrimonial y alto potencial de reposicionamiento. Con una superficie aproximada de 598 m², se distribuye en planta baja más dos alturas y actualmente se destina a oficinas, con posibilidad de redistribución integral. La planta baja cuenta con uso comercial, ideal para actividades culturales o recreativas, permitiendo incluso un modelo mixto. Las plantas superiores ofrecen potencial para desarrollar hasta 6 viviendas, sujeto a proyecto y licencias. Ubicado en una zona prime, con excelente conexión y gran atractivo cultural, se trata de un activo único, actualmente infraexplotado, ideal para inversores o proyectos de alto nivel.
Se vende el edificio completo.
Documentación técnica y análisis detallado disponibles bajo solicitud.
Honorarios de agencia: a cargo del vendedor
Notaría, impuestos y registro: repercutibles al comprador
Aviso legal Ley 10/2025:
Este anuncio cumple la Ley 10/2025 sobre servicios de atención a la clientela. La información proporcionada permite que el comprador conozca de forma clara los importes y conceptos que asumirá.
En nuestra agencia no solo le ayudamos a encontrar su vivienda ideal, sino que le acompañamos en todo el proceso con un equipo de profesionales altamente cualificados. Contamos con brokers especializados en la tramitación de hipotecas, así como un equipo propio de reformas y arquitecto, todos con una sólida trayectoria y años de experiencia en el sector. Nuestro compromiso va más allá de la compra: le ofrecemos un completo servicio postventa para garantizar su tranquilidad en todo momento, respaldado por expertos en cada área. Si usted es propietario y está pensando en vender o alquilar su vivienda, no dude en contactarnos estaremos encantados de asesorarle de forma detallada y personalizada. Nuestros clientes nos avalan, ya que entendemos que cada persona es única y ofrecemos un trato cercano, transparente y completamente adaptado a sus necesidades.
Aviso Legal: Nos reservamos el derecho de emprender acciones legales contra terceros, sean personas o entidades, que hagan un uso indebido de este anuncio o de las fotografías contenidas en el mismo, incluyendo, pero no limitado a, el uso no autorizado de nuestras credenciales, número de colegiado, API (incluyendo AICAT y COPC), la suplantación de identidad o de empresa, o cualquier actuación que pueda causar perjuicio a nuestra gestoría, ArrelsBcn Gestió Patrimonial.
Cualquier uso no autorizado se considerará ilícito y será objeto de las acciones legales correspondientes.
