Piso en Horta-Guinardó, con 80 m² construidos, 65 m² útiles, 3 dormitorios, 1 baños, reformado, exterior, planta Entreplanta, cocina independiente, orientación sur, 1975, 5 plantas del edificio, gastos de comunidad/mes de 50 €, acepta animales, suelo de terrazo, seguridad, cuota ibi: 500€
Piso en venta en El Carmel: un lienzo en blanco para diseñar tu hogar
Situado en una tranquila zona residencial del distrito de Horta-Guinardó, a pocos pasos del pulmón verde que es el Parc del Guinardó, disfrutarás de un entorno rodeado de parques, jardines y servicios, con excelente comunicación en transporte público (metro y autobuses).
Ubicado en una segunda planta de una finca sin ascensor, el piso ofrece 60 m² útiles (80 m² construidos) con una distribución versátil ideal para diseñar un espacio cálido y funcional.
Características principales:
3 Dormitorios: espacios versátiles para adaptarse a las necesidades de tu familia.
Cocina independiente con galería: perfecta para añadir almacenamiento adicional.
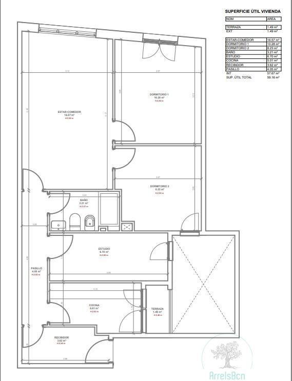
Baño completo de 4 piezas.
Estar-comedor de 16,57 m²: amplio y luminoso, ideal para reuniones familiares.
Pequeña terraza de 1,49 m²: tu rincón al aire libre.
Distribución eficiente: cada metro cuadrado está bien aprovechado.
Superficies:
Dormitorio 1: 10,28 m²
Dormitorio 2: 8,23 m²
Estudio: 6,70 m² (perfecto para despacho o sala de lectura)
Cocina: 5,01 m²
Baño: 3,21 m²
Recibidor y pasillo bien conectados
Altura de techos entre 2,46 y 2,50 metros, creando una sensación de amplitud.
Este piso ofrece gran potencial para ser transformado en el hogar que siempre has soñado. La orientación y el entorno permiten una excelente entrada de luz natural durante gran parte del día.
Ubicación privilegiada:
El Carmel es un barrio tranquilo y familiar, conocido por sus increíbles vistas panorámicas desde los icónicos Búnkeres del Carmel. En el entorno encontrarás supermercados, colegios, centros de salud y una excelente conexión con transporte público gracias a la Línea 5 de metro y varias líneas de autobús.
Rodeado de zonas verdes, El Carmel ofrece el equilibrio perfecto entre naturaleza y servicios urbanos.
¡No dejes pasar esta oportunidad para crear tu hogar ideal en una de las zonas más tranquilas de Barcelona!
¿Te gustaría agendar una visita?
