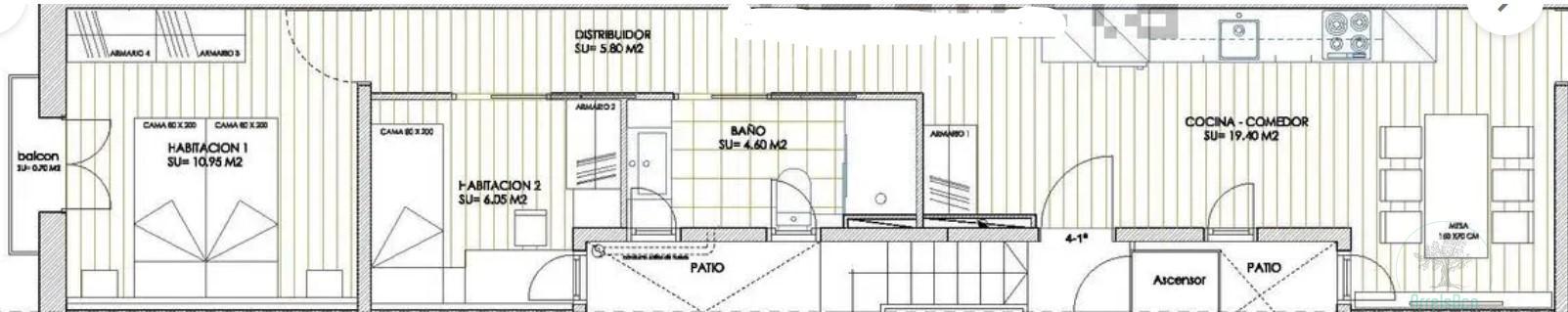
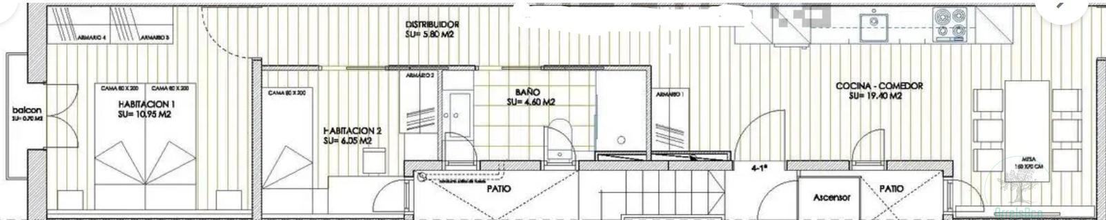
Piso en Eixample, con 68 m² construidos, 64 m² útiles, 2 dormitorios, 1 baños, reformado, exterior, planta 4, cocina independiente, ascensor, orientación oeste, 1941, 5 plantas del edificio, calefacción individual, combustible gas natural, aire acondicionado frío, agua caliente individual, energía agua gas natural, gastos de comunidad/mes de 83 €, alta suministros realizada, suelo de parquet, cuota ibi: 500€
Ubicado en la emblemática Avenida Gaudí, este acogedor piso de 68 m² ,ofrece una oportunidad única para vivir en una de las zonas más prestigiosas de Barcelona. Con 2 dormitorios , esta propiedad es ideal para familias, parejas o inversores que buscan una ubicación privilegiada y una distribución eficiente.
Serás recibido por un luminoso salón que se abre a un balcón exterior, desde el cual podrás disfrutar de impresionantes vistas tanto al majestuoso Hospital de Sant Pau como a la icónica Sagrada Familia. La orientación del piso asegura una excelente entrada de luz natural durante todo el día, creando un ambiente cálido y acogedor.
El piso cuenta con una cocina funcional y bien equipada, perfecta para preparar tus platos favoritos.
Situado en un entorno peatonal, este piso garantiza tranquilidad y seguridad, mientras que su ubicación en la Avenida Gaudí proporciona fácil acceso a una amplia gama de servicios y comodidades. En las cercanías encontrarás una variada oferta gastronómica, tiendas, supermercados y servicios de transporte público, lo que facilita la conexión con el resto de la ciudad.
Vivir aquí te permitirá disfrutar de un entorno cultural y arquitectónico inigualable, con dos de las obras maestras de Gaudí a pocos pasos de tu hogar. No pierdas esta oportunidad de adquirir una propiedad en una de las zonas más deseadas de Barcelona. ¡Ven a visitarlo y descubre todo lo que este encantador piso tiene para ofrecer!
Notaría, registro e ITP NO INCLUIDOS
